ПСН в тихом центре города с отдельным входом.

ул Лесгафта, д. 6/57

1 100 000 руб.

?

$ 1 086

€ 979

10 680 руб./м²


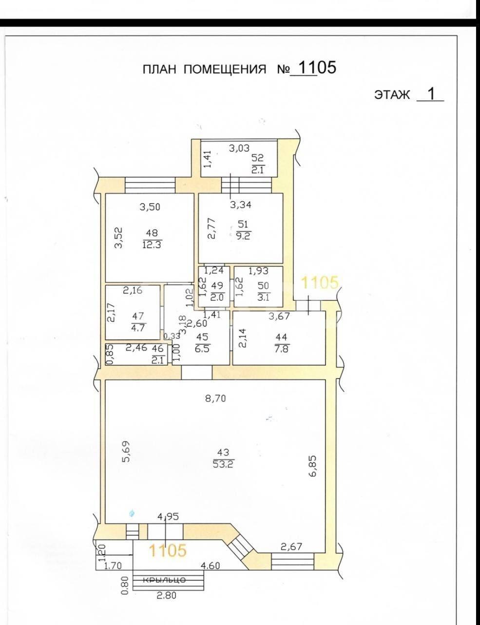
103 м²

1/5 этажей

Код объекта

133052

Предложение доступно для субагентов, авторизуйтесь

ПСН в тихом центре города с отдельным входом.

Код объекта: 133052.
Тип объекта: Помещение свободного назначения.
Площадь: 103 м².
Этаж / Этажность: 1 / 5.

Описание и характеристики

Характеристики:
- 1 линия
- Отдельная входная группа
- Общая парковка
- Есть возможность разместить вывеску
- Погрузка/разгрузка: Главный вход, Отдельное окно
- Доступ 24/7
- ХВС/ГВС
- Свой санузел
- Центральное отопление
- Максимальная мощность 15 кВт
- Хороший ремонт
- Стрит ритейл
- Без лифта
- Высота потолков 3 м
- С окнами
- Возможность перепланировки отсутствует
- Коммунальные услуги оплачиваются отдельно

Дополнительная информация:
Свой вход. Хороший ремонт. Пеший / авто трафик.

По всем вопросам можете обращаться к представителю собственника: Камалов Р. (746)

Перейти в карточку объекта в CRM: 133052.

Миляуша

+7 927 044-09-47

или оставьте ваш номер, и я перезвоню в течение 30 минут

Отправляя заявку вы соглашаетесь на обработку персональных данных

1 100 000 руб.

?

$ 13 970

€ 11 970

10 680 руб./м²


103 м²

1/5 этажей

Код объекта

133052

Предложение доступно для субагентов, авторизуйтесь

Миляуша

+7 927 044-09-47

или оставьте ваш номер, и я перезвоню в течение 30 минут

Отправляя заявку вы соглашаетесь на обработку персональных данных

Похожие объявления

Посмотреть все похожие объявления
1/29
Код объекта: 297838.
Тип объекта: Помещение свободного назначения.
Площадь: 1237 м².
Этаж / Этажность: 1 / 2.
1/14
Код объекта: 285162.
Тип объекта: Помещение свободного назначения.
Площадь: 2000 м².
Этаж / Этажность: -1 / 10.
1/18
Код объекта: 264794.
Тип объекта: Помещение свободного назначения.
Площадь: 1800 м².
Этаж / Этажность: 1 / 4.
1/16
Код объекта: 284023.
Тип объекта: Помещение свободного назначения.
Площадь: 886 м².
Этаж / Этажность: 1 / 4.
1/38
Код объекта: 396676.
Тип объекта: Помещение свободного назначения.
Площадь: 438 м².
Этаж / Этажность: 1 / 17.
1/16
Код объекта: 298862.
Тип объекта: Помещение свободного назначения.
Площадь: 75 м².
Этаж / Этажность: 1 / 1.
1/11
Код объекта: 221727.
Тип объекта: Помещение свободного назначения.
Площадь: 120 м².
Этаж / Этажность: 1 / 10.
1/19
Код объекта: 336573.
Тип объекта: Помещение свободного назначения.
Площадь: 108 м².
Этаж / Этажность: 2 / 2.
1/16
Код объекта: 345264.
Тип объекта: Помещение свободного назначения.
Площадь: 78.5 м².
Этаж / Этажность: 1 / 1.
1/13
Код объекта: 254725.
Тип объекта: Помещение свободного назначения.
Площадь: 110 м².
Этаж / Этажность: 1 / 2.
1/19
Код объекта: 253146.
Тип объекта: Складское помещение.
Площадь: 5000 м².
Этаж / Этажность: 1 / 1.
1/7
Код объекта: 240471.
Тип объекта: Земельный участок.
Площадь: 71400 .
1/10
Код объекта: 242538.
Тип объекта: Помещение свободного назначения.
Площадь: 13.5 м².
Этаж / Этажность: 3 / 3.
1/3
Код объекта: 304850.
Тип объекта: Земельный участок.
Площадь: 10000 м².
1/103
Код объекта: 335368.
Тип объекта: Гостиница.
Площадь: 700 м².
Этаж / Этажность: 1 / 2.

Не хочу искать, перезвоните мне!

Оставьте номер телефона, наш специалист свяжется с вами и поможет с подбором недвижимости!