Сдам помещение в торговом центре

ул Николая Ершова, д. 78Б

990 000 руб.

?

$ 1 086

€ 979

450 руб./м²


2200 м²

-1/2 этажей

Код объекта

124972

Предложение доступно для субагентов, авторизуйтесь

Сдам помещение в торговом центре

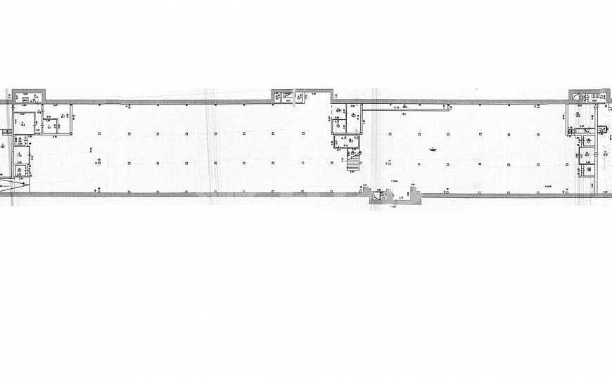
Код объекта: 124972.
Тип объекта: Помещение свободного назначения.
Площадь: 2200 м².
Этаж / Этажность: -1 / 2.

Описание и характеристики

Сдам помещение в Набережных Челнах, пр-кт Автозаводский, д 17

Характеристики:
- 1 линия
- Общая входная группа
- Общая парковка
- Есть возможность разместить вывеску
- Погрузка/разгрузка: Главный вход
- Доступ 24/7
- ХВС/ГВС
- Свой санузел
- Центральное отопление
- Хороший ремонт
- Торговый/офисный центр
- Без лифта
- Высота потолков 3 м
- Без окон
- Возможность перепланировки
- Коммунальные услуги оплачиваются отдельно

Дополнительная информация:
Рядом находится автобусная остановка. Можно разделить площадь на 2 части, 1363м и 917м. Все коммуникации есть.

По всем вопросам можете обращаться к представителю собственника: Дима Ц (236)

Перейти в карточку объекта в CRM: 124972.

Миляуша

+7 927 044-09-47

или оставьте ваш номер, и я перезвоню в течение 30 минут

Отправляя заявку вы соглашаетесь на обработку персональных данных

990 000 руб.

?

$ 12 188

€ 10 550

450 руб./м²


2200 м²

-1/2 этажей

Код объекта

124972

Предложение доступно для субагентов, авторизуйтесь

Миляуша

+7 927 044-09-47

или оставьте ваш номер, и я перезвоню в течение 30 минут

Отправляя заявку вы соглашаетесь на обработку персональных данных

Похожие объявления

Посмотреть все похожие объявления
1/26
Код объекта: 229453.
Тип объекта: Помещение свободного назначения.
Площадь: 556.4 м².
Этаж / Этажность: 1 / 6.
1/18
Код объекта: 264794.
Тип объекта: Помещение свободного назначения.
Площадь: 1800 м².
Этаж / Этажность: 1 / 4.
1/29
Код объекта: 297838.
Тип объекта: Помещение свободного назначения.
Площадь: 1237 м².
Этаж / Этажность: 1 / 2.
1/23
Код объекта: 294524.
Тип объекта: Помещение свободного назначения.
Площадь: 387 м².
Этаж / Этажность: 1 / 5.
1/17
Код объекта: 369516.
Тип объекта: Помещение свободного назначения.
Площадь: 1066 м².
Этаж / Этажность: 2 / 17.
1/14
Код объекта: 285162.
Тип объекта: Помещение свободного назначения.
Площадь: 2000 м².
Этаж / Этажность: -1 / 10.
1/18
Код объекта: 264794.
Тип объекта: Помещение свободного назначения.
Площадь: 1800 м².
Этаж / Этажность: 1 / 4.
1/21
Код объекта: 257964.
Тип объекта: Помещение свободного назначения.
Площадь: 340 м².
Этаж / Этажность: -1 / 3.
1/19
Код объекта: 253146.
Тип объекта: Складское помещение.
Площадь: 5000 м².
Этаж / Этажность: 1 / 1.
1/7
Код объекта: 236690.
Тип объекта: Помещение свободного назначения.
Площадь: 512 м².
Этаж / Этажность: 1 / 14.
1/14
Код объекта: 237036.
Тип объекта: Земельный участок.
Площадь: 69000 м².
1/6
Код объекта: 236701.
Тип объекта: Продажа бизнеса.
Площадь: 530.9 м².
Этаж / Этажность: -1 / 5.

Не хочу искать, перезвоните мне!

Оставьте номер телефона, наш специалист свяжется с вами и поможет с подбором недвижимости!