Сдам в центре города отдельно стоящее здание

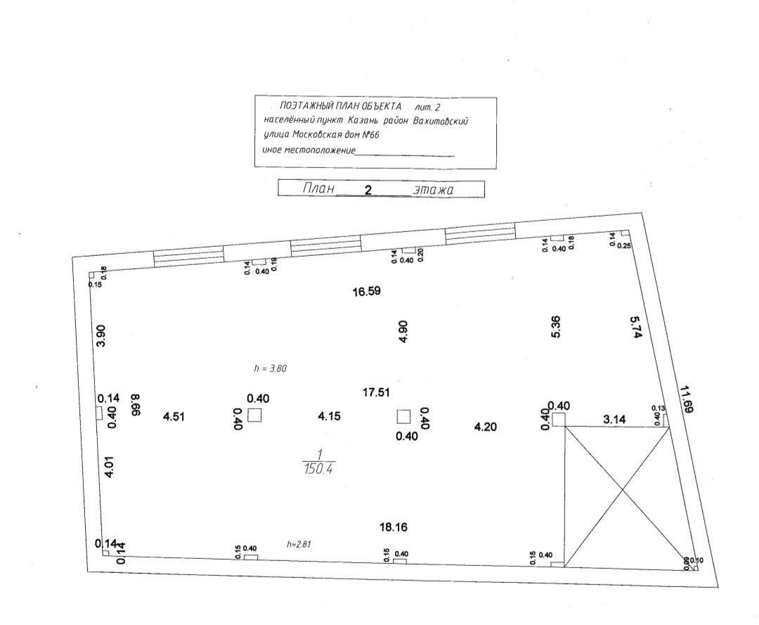
ул Московская, д. 66В

625 000 руб.

?

$ 1 086

€ 979

1 984 руб./м²


315 м²

1/2 этажей

Код объекта

125935

Предложение доступно для субагентов, авторизуйтесь

Сдам в центре города отдельно стоящее здание

Код объекта: 125935.
Тип объекта: Помещение свободного назначения.
Площадь: 315 м².
Этаж / Этажность: 1 / 2.

Описание и характеристики

От собственника! Без комиссии!

Характеристики:
- 1 линия
- Отдельная входная группа
- Своя парковка
- Есть возможность разместить вывеску
- Погрузка/разгрузка: Запасной вход, Главный вход
- Доступ 24/7
- ХВС/Бойлер
- Свой санузел
- Приточно-вытяжная вентиляция
- Есть кондиционер
- Максимальная мощность 120 кВт
- Чистовой ремонт
- Отдельно стоящее здание
- Имеется запасной выход
- Высота потолков 3.8 м
- С окнами
- Возможность перепланировки
- Коммунальные услуги оплачиваются отдельно

Дополнительная информация:
Отдельно стоящее здание со своим земельным участком и парковкой в центре города подойдёт под любой вид деятельности.
Объект колонного типа, опенспейс. Все, что внутри- легко демонтируется,  два входа с улицы легко подойдёт двум организациям.
Звоните, организую показ в любое удобное для вас время
АРР2

По всем вопросам можете обращаться к представителю собственника: Айдар (753)

Перейти в карточку объекта в CRM: 125935.

Миляуша

+7 927 044-09-47

или оставьте ваш номер, и я перезвоню в течение 30 минут

Отправляя заявку вы соглашаетесь на обработку персональных данных

625 000 руб.

?

$ 7 938

€ 6 801

1 984 руб./м²


315 м²

1/2 этажей

Код объекта

125935

Предложение доступно для субагентов, авторизуйтесь

Миляуша

+7 927 044-09-47

или оставьте ваш номер, и я перезвоню в течение 30 минут

Отправляя заявку вы соглашаетесь на обработку персональных данных

Похожие объявления

Посмотреть все похожие объявления
1/24
Код объекта: 287461.
Тип объекта: Помещение свободного назначения.
Площадь: 776 м².
Этаж / Этажность: 5 / 8.
1/12
Код объекта: 238616.
Тип объекта: Помещение свободного назначения.
Площадь: 350 м².
Этаж / Этажность: 1 / 2.
1/18
Код объекта: 369516.
Тип объекта: Помещение свободного назначения.
Площадь: 1066 м².
Этаж / Этажность: 2 / 17.
1/36
Код объекта: 358671.
Тип объекта: Помещение свободного назначения.
Площадь: 375 м².
Этаж / Этажность: 2 / 3.
1/13
Код объекта: 409263.
Тип объекта: Помещение свободного назначения.
Площадь: 250 м².
Этаж / Этажность: 1 / 2.
1/15
Код объекта: 342273.
Тип объекта: Помещение свободного назначения.
Площадь: 262 м².
Этаж / Этажность: 1 / 1.
1/17
Код объекта: 307124.
Тип объекта: Помещение свободного назначения.
Площадь: 242 м².
Этаж / Этажность: 1 / 14.
1/26
Код объекта: 335155.
Тип объекта: Помещение свободного назначения.
Площадь: 400 м².
Этаж / Этажность: 1 / 2.
1/30
Код объекта: 236598.
Тип объекта: Помещение свободного назначения.
Площадь: 280 м².
Этаж / Этажность: 2 / 3.
1/9
Код объекта: 236697.
Тип объекта: Помещение свободного назначения.
Площадь: 250 м².
Этаж / Этажность: 1 / 2.
1/19
Код объекта: 253146.
Тип объекта: Складское помещение.
Площадь: 5000 м².
Этаж / Этажность: 1 / 1.
1/7
Код объекта: 240471.
Тип объекта: Земельный участок.
Площадь: 71400 .
1/10
Код объекта: 242538.
Тип объекта: Помещение свободного назначения.
Площадь: 13.5 м².
Этаж / Этажность: 3 / 3.
1/3
Код объекта: 304850.
Тип объекта: Земельный участок.
Площадь: 10000 м².
1/103
Код объекта: 335368.
Тип объекта: Гостиница.
Площадь: 700 м².
Этаж / Этажность: 1 / 2.

Не хочу искать, перезвоните мне!

Оставьте номер телефона, наш специалист свяжется с вами и поможет с подбором недвижимости!