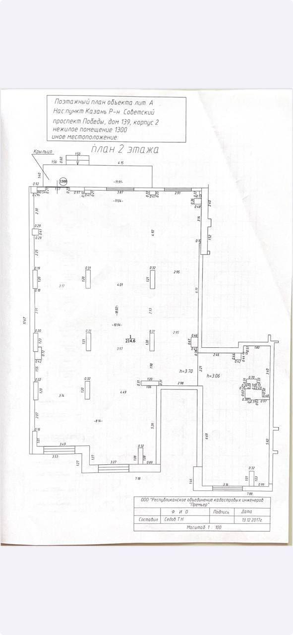
Торговое помещение 214,6м² на большом трафике

пр-кт Победы, д. 139, корп. 1

321 900 руб.

?

$ 1 086

€ 979

1 500 руб./м²


214.6 м²

1/22 этажей

Код объекта

127966

Предложение доступно для субагентов, авторизуйтесь

Торговое помещение 214,6м² на большом трафике

Код объекта: 127966.
Тип объекта: Помещение свободного назначения.
Площадь: 214.6 м².
Этаж / Этажность: 1 / 22.

Описание и характеристики

Характеристики:
- 1 линия
- Отдельная входная группа
- Общая парковка
- Есть возможность разместить вывеску
- Погрузка/разгрузка: Главный вход
- Доступ 24/7
- ХВС/ГВС
- Свой санузел
- Центральное отопление
- Приточно-вытяжная вентиляция
- Требует косметического ремонта
- Стрит ритейл
- С окнами
- Возможность перепланировки
- Коммунальные услуги оплачиваются отдельно

Дополнительная информация:
По телефону
АРР1

По всем вопросам можете обращаться к представителю собственника: Маргарита (235), Аделина (749)

Перейти в карточку объекта в CRM: 127966.

Миляуша

+7 927 044-09-47

или оставьте ваш номер, и я перезвоню в течение 30 минут

Отправляя заявку вы соглашаетесь на обработку персональных данных

321 900 руб.

?

$ 4 182

€ 3 581

1 500 руб./м²


214.6 м²

1/22 этажей

Код объекта

127966

Предложение доступно для субагентов, авторизуйтесь

Миляуша

+7 927 044-09-47

или оставьте ваш номер, и я перезвоню в течение 30 минут

Отправляя заявку вы соглашаетесь на обработку персональных данных

Похожие объявления

Посмотреть все похожие объявления
1/15
Код объекта: 342273.
Тип объекта: Помещение свободного назначения.
Площадь: 262 м².
Этаж / Этажность: 1 / 1.
1/9
Код объекта: 228677.
Тип объекта: Помещение свободного назначения.
Площадь: 127.6 м².
Этаж / Этажность: 1 / 5.
1/23
Код объекта: 253400.
Тип объекта: Помещение свободного назначения.
Площадь: 572.4 м².
Этаж / Этажность: 1 / 3.
1/13
Код объекта: 258357.
Тип объекта: Помещение свободного назначения.
Площадь: 348 м².
Этаж / Этажность: 1 / 2.
1/9
Код объекта: 256270.
Тип объекта: Помещение свободного назначения.
Площадь: 282 м².
Этаж / Этажность: 1 / 1.
1/13
Код объекта: 285275.
Тип объекта: Помещение свободного назначения.
Площадь: 220 м².
Этаж / Этажность: 1 / 3.
1/15
Код объекта: 342273.
Тип объекта: Помещение свободного назначения.
Площадь: 262 м².
Этаж / Этажность: 1 / 1.
1/16
Код объекта: 297483.
Тип объекта: Помещение свободного назначения.
Площадь: 182 м².
Этаж / Этажность: 2 / 2.
1/15
Код объекта: 230266.
Тип объекта: Помещение свободного назначения.
Площадь: 165 м².
Этаж / Этажность: -1 / 1.
1/9
Код объекта: 344254.
Тип объекта: Помещение свободного назначения.
Площадь: 163 м².
Этаж / Этажность: 1 / 9.
1/19
Код объекта: 253146.
Тип объекта: Складское помещение.
Площадь: 5000 м².
Этаж / Этажность: 1 / 1.
1/5
Код объекта: 313323.
Тип объекта: Земельный участок.
Площадь: 55000 .
1/7
Код объекта: 240471.
Тип объекта: Земельный участок.
Площадь: 71400 .
1/20
Код объекта: 216229.
Тип объекта: Торговое помещение.
Площадь: 820 м².
Этаж / Этажность: -1 / 2.
1/10
Код объекта: 242538.
Тип объекта: Помещение свободного назначения.
Площадь: 13.5 м².
Этаж / Этажность: 3 / 3.

Не хочу искать, перезвоните мне!

Оставьте номер телефона, наш специалист свяжется с вами и поможет с подбором недвижимости!