Офис с видом на Кремль, 187м²

ул Карла Маркса, д. 3

281 512.20 руб.

?

$ 1 086

€ 979

1 499 руб./м²


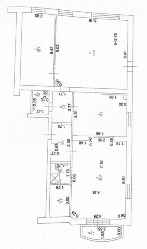
187.8 м²

4/4 этажей

Код объекта

123062

Предложение доступно для субагентов, авторизуйтесь

Офис с видом на Кремль, 187м²

Код объекта: 123062.
Тип объекта: Офисное помещение.
Площадь: 187.8 м².
Этаж / Этажность: 4 / 4.

Описание и характеристики

От собственника! Без комиссии!

Сдается уютное помещение в исторической части города с видом на Кремль. Помещение раздельно на 5 кабинетов, имеется 3 санузла (один с душевой кабиной). Большой и светлый кабинет для руководства с балконом.  Три бесплатных парковочных места+ муниципальная парковка. Два входа в офис с улицы и со двора. В помещении выполнен косметический ремонт.

Характеристики:
- 1 линия
- Общая входная группа
- Общая парковка
- Доступ 24/7
- ХВС/ГВС
- Свой санузел
- Центральное отопление
- Есть кондиционер
- Хороший ремонт
- Кабинетная планировка
- Офисный центр
- Без мебели
- С окнами
- Инфраструктура: Кафе/столовые, Магазины, Банки
- Коммунальные услуги оплачиваются отдельно

По всем вопросам можете обращаться к представителю собственника: Ильнур (248), Давид (255)

Перейти в карточку объекта в CRM: 123062.

Миляуша

+7 927 044-09-47

или оставьте ваш номер, и я перезвоню в течение 30 минут

Отправляя заявку вы соглашаетесь на обработку персональных данных

281 512.20 руб.

?

$ 3 466

€ 3 000

1 499 руб./м²


187.8 м²

4/4 этажей

Код объекта

123062

Предложение доступно для субагентов, авторизуйтесь

Миляуша

+7 927 044-09-47

или оставьте ваш номер, и я перезвоню в течение 30 минут

Отправляя заявку вы соглашаетесь на обработку персональных данных

Похожие объявления

Посмотреть все похожие объявления
1/36
Код объекта: 335006.
Тип объекта: Офисное помещение.
Площадь: 150 м².
Этаж / Этажность: 3 / 3.
1/20
Код объекта: 259031.
Тип объекта: Офисное помещение.
Площадь: 256 м².
Этаж / Этажность: 1 / 6.
1/20
Код объекта: 336990.
Тип объекта: Офисное помещение.
Площадь: 180 м².
Этаж / Этажность: 1 / 6.
1/14
Код объекта: 334315.
Тип объекта: Офисное помещение.
Площадь: 302 м².
Этаж / Этажность: 2 / 2.
1/11
Код объекта: 355369.
Тип объекта: Офисное помещение.
Площадь: 300 м².
Этаж / Этажность: 1 / 1.
1/36
Код объекта: 335006.
Тип объекта: Офисное помещение.
Площадь: 150 м².
Этаж / Этажность: 3 / 3.
1/30
Код объекта: 345837.
Тип объекта: Офисное помещение.
Площадь: 170 м².
Этаж / Этажность: 1 / 2.
1/12
Код объекта: 356296.
Тип объекта: Офисное помещение.
Площадь: 200 м².
Этаж / Этажность: 1 / 5.
1/27
Код объекта: 313413.
Тип объекта: Офисное помещение.
Площадь: 132.4 м².
Этаж / Этажность: 1 / 9.
1/21
Код объекта: 338074.
Тип объекта: Офисное помещение.
Площадь: 196 м².
Этаж / Этажность: 1 / 9.
1/21
Код объекта: 257964.
Тип объекта: Помещение свободного назначения.
Площадь: 340 м².
Этаж / Этажность: -1 / 3.
1/19
Код объекта: 253146.
Тип объекта: Складское помещение.
Площадь: 5000 м².
Этаж / Этажность: 1 / 1.
1/7
Код объекта: 236690.
Тип объекта: Помещение свободного назначения.
Площадь: 512 м².
Этаж / Этажность: 1 / 14.
1/14
Код объекта: 237036.
Тип объекта: Земельный участок.
Площадь: 69000 м².
1/6
Код объекта: 236701.
Тип объекта: Продажа бизнеса.
Площадь: 530.9 м².
Этаж / Этажность: -1 / 5.

Не хочу искать, перезвоните мне!

Оставьте номер телефона, наш специалист свяжется с вами и поможет с подбором недвижимости!