Здание 1136,7м² с парковкой

ул Четаева, д. 17

2 000 000 руб.

?

$ 1 086

€ 979

1 759 руб./м²


1136.7 м²

1/2 этажей

Код объекта

130527

Предложение доступно для субагентов, авторизуйтесь

Здание 1136,7м² с парковкой

Код объекта: 130527.
Тип объекта: Отдельно стоящее здание.
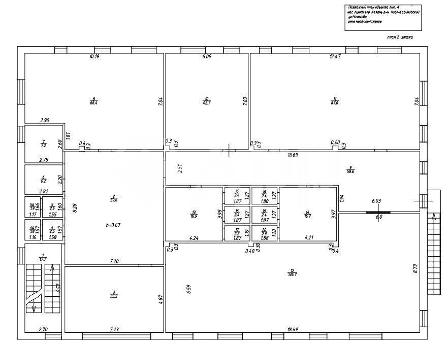
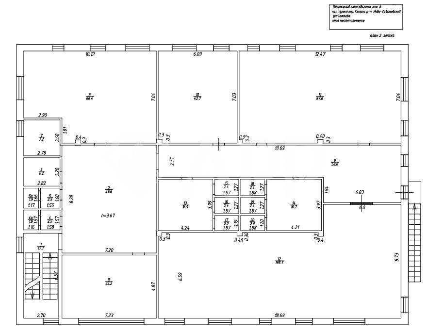
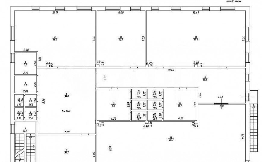
Площадь: 1136.7 м².
Этаж / Этажность: 1 / 2.
Назначения: Медучреждение.

Описание и характеристики

Характеристики:
- 2 линия
- Отдельная входная группа
- Своя парковка
- Доступ 24/7
- ХВС/ГВС
- Центральное отопление
- Черновой ремонт
- Кабинетная планировка
- Отдельно стоящее здание
- С окнами
- Инфраструктура: Кафе/столовые, Магазины, Банки
- Коммунальные услуги оплачиваются отдельно

Дополнительная информация:
Новое здание под мед.центр, клинику. Пять  входных групп. Площадь поэтажно - 563,4м2 и  573,3м2. Высота потолков: 1 эт.- 3,82м, 2эт.- 3,67м. Эксплуатируемая кровля- терраса, с возможностью утеплить. Своя парковка на 25 автомобилей. Локация пересечение пр.Ямашева и Амирхана.
АРР2

По всем вопросам можете обращаться к представителю собственника: Геннадий (217)

Перейти в карточку объекта в CRM: 130527.

Миляуша

+7 927 044-09-47

или оставьте ваш номер, и я перезвоню в течение 30 минут

Отправляя заявку вы соглашаетесь на обработку персональных данных

2 000 000 руб.

?

$ 25 364

€ 21 646

1 759 руб./м²


1136.7 м²

1/2 этажей

Код объекта

130527

Предложение доступно для субагентов, авторизуйтесь

Миляуша

+7 927 044-09-47

или оставьте ваш номер, и я перезвоню в течение 30 минут

Отправляя заявку вы соглашаетесь на обработку персональных данных

Похожие объявления

Посмотреть все похожие объявления
1/16
Код объекта: 278801.
Тип объекта: Отдельно стоящее здание.
Площадь: 1500 м².
Этаж / Этажность: 1 / 1.
1/40
Код объекта: 334152.
Тип объекта: Отдельно стоящее здание.
Площадь: 700 м².
Этаж / Этажность: 2 / 3.
1/12
Код объекта: 377265.
Тип объекта: Отдельно стоящее здание.
Площадь: 961.9 м².
Этаж / Этажность: 1 / 2.
1/25
Код объекта: 359451.
Тип объекта: Отдельно стоящее здание.
Площадь: 900 м².
Этаж / Этажность: 1 / 2.
1/20
Код объекта: 360099.
Тип объекта: Отдельно стоящее здание.
Площадь: 804.9 м².
Этаж / Этажность: 1 / 2.
1/12
Код объекта: 373118.
Тип объекта: Отдельно стоящее здание.
Площадь: 980 м².
Этаж / Этажность: 1 / 1.
1/12
Код объекта: 304870.
Тип объекта: Отдельно стоящее здание.
Площадь: 1000 м².
Этаж / Этажность: 1 / 2.
1/11
Код объекта: 367523.
Тип объекта: Отдельно стоящее здание.
Площадь: 1200 м².
Этаж / Этажность: 1 / 3.
1/12
Код объекта: 377265.
Тип объекта: Отдельно стоящее здание.
Площадь: 961.9 м².
Этаж / Этажность: 1 / 2.
1/25
Код объекта: 359451.
Тип объекта: Отдельно стоящее здание.
Площадь: 900 м².
Этаж / Этажность: 1 / 2.
1/19
Код объекта: 253146.
Тип объекта: Складское помещение.
Площадь: 5000 м².
Этаж / Этажность: 1 / 1.
1/5
Код объекта: 313323.
Тип объекта: Земельный участок.
Площадь: 55000 .
1/7
Код объекта: 240471.
Тип объекта: Земельный участок.
Площадь: 71400 .
1/20
Код объекта: 216229.
Тип объекта: Торговое помещение.
Площадь: 820 м².
Этаж / Этажность: -1 / 2.
1/10
Код объекта: 242538.
Тип объекта: Помещение свободного назначения.
Площадь: 13.5 м².
Этаж / Этажность: 3 / 3.

Не хочу искать, перезвоните мне!

Оставьте номер телефона, наш специалист свяжется с вами и поможет с подбором недвижимости!