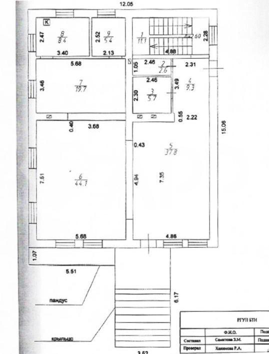
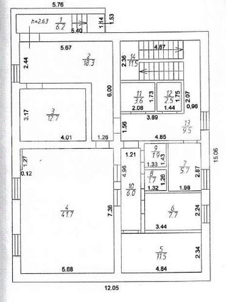
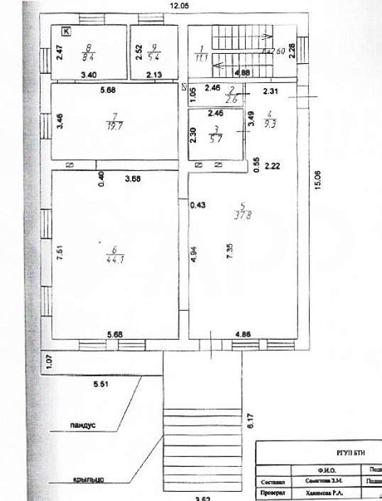
Здание (готовый бизнес) 419,2 м² (Габ )

ул Шамиля Усманова, д. 27б

59 500 000 руб.

?

$ 1 086

€ 979

141 937 руб./м²


419.2 м²

2/2 этажей

Код объекта

97617

Предложение доступно для субагентов, авторизуйтесь

Здание (готовый бизнес) 419,2 м² (Габ )

Код объекта: 97617.
Тип объекта: Помещение свободного назначения.
Площадь: 419.2 м².
Этаж / Этажность: 2 / 2.

Описание и характеристики

Продается отдельно стоящее  двухэтажное здание  площадью 419,2 м².
Земля 436 м² в собственности.
В данное время- действующее кафе.
В Шаговой доступности ст. метро Яшлек
Варианты использования: ресторан, мед.центр, хостел, общепит.

- два этажа - гостевые помещения
- цоколь полностью оборудованная кухня с мангалом
- большой автомобильный и пешеходный трафик
- охранная сигнализация с видеонаблюдением
- пожарная сигнализация
- система кондиционирования и вентиляции
- хороший  ремонт, оригинальный дизайн
- 2 входа
- парковка
- остановка общественного транспорта
- кондиционер/вентиляция/водоснабжение/электричество/отопление/интернет

АРР 1

По всем вопросам можете обращаться к представителям собственника: Геннадий (217)

Перейти в карточку объекта в CRM: 97617.

Миляуша

+7 927 044-09-47

или оставьте ваш номер, и я перезвоню в течение 30 минут

Отправляя заявку вы соглашаетесь на обработку персональных данных

59 500 000 руб.

?

$ 732 527

€ 634 082

141 937 руб./м²


419.2 м²

2/2 этажей

Код объекта

97617

Предложение доступно для субагентов, авторизуйтесь

Миляуша

+7 927 044-09-47

или оставьте ваш номер, и я перезвоню в течение 30 минут

Отправляя заявку вы соглашаетесь на обработку персональных данных

Похожие объявления

Посмотреть все похожие объявления
1/7
Код объекта: 236690.
Тип объекта: Помещение свободного назначения.
Площадь: 512 м².
Этаж / Этажность: 1 / 14.
1/11
Код объекта: 342120.
Тип объекта: Помещение свободного назначения.
Площадь: 205 м².
Этаж / Этажность: 1 / 4.
1/13
Код объекта: 256277.
Тип объекта: Помещение свободного назначения.
Площадь: 157.5 м².
Этаж / Этажность: 1 / 1.
1/16
Код объекта: 258020.
Тип объекта: Помещение свободного назначения.
Площадь: 551 м².
Этаж / Этажность: 1 / 2.
1/11
Код объекта: 261309.
Тип объекта: Помещение свободного назначения.
Площадь: 769 м².
Этаж / Этажность: 1 / 6.
1/21
Код объекта: 257964.
Тип объекта: Помещение свободного назначения.
Площадь: 340 м².
Этаж / Этажность: -1 / 3.
1/7
Код объекта: 236690.
Тип объекта: Помещение свободного назначения.
Площадь: 512 м².
Этаж / Этажность: 1 / 14.
1/11
Код объекта: 256920.
Тип объекта: Помещение свободного назначения.
Площадь: 340 м².
Этаж / Этажность: -1 / 10.
1/11
Код объекта: 275627.
Тип объекта: Помещение свободного назначения.
Площадь: 388.5 м².
Этаж / Этажность: 1 / 5.
1/6
Код объекта: 371279.
Тип объекта: Помещение свободного назначения.
Площадь: 373 м².
Этаж / Этажность: 1 / 16.
1/21
Код объекта: 257964.
Тип объекта: Помещение свободного назначения.
Площадь: 340 м².
Этаж / Этажность: -1 / 3.
1/19
Код объекта: 253146.
Тип объекта: Складское помещение.
Площадь: 5000 м².
Этаж / Этажность: 1 / 1.
1/7
Код объекта: 236690.
Тип объекта: Помещение свободного назначения.
Площадь: 512 м².
Этаж / Этажность: 1 / 14.
1/14
Код объекта: 237036.
Тип объекта: Земельный участок.
Площадь: 69000 м².
1/6
Код объекта: 236701.
Тип объекта: Продажа бизнеса.
Площадь: 530.9 м².
Этаж / Этажность: -1 / 5.

Не хочу искать, перезвоните мне!

Оставьте номер телефона, наш специалист свяжется с вами и поможет с подбором недвижимости!