Помещение 300м² в новом ЖК(ст.м.Аметьево)

ул Аметьевская магистраль, д. 16, корп. 1

390 000 руб.

?

$ 1 086

€ 979

1 300 руб./м²


300 м²

1/19 этажей

Код объекта

123730

Предложение доступно для субагентов, авторизуйтесь

Помещение 300м² в новом ЖК(ст.м.Аметьево)

Код объекта: 123730.
Тип объекта: Помещение свободного назначения.
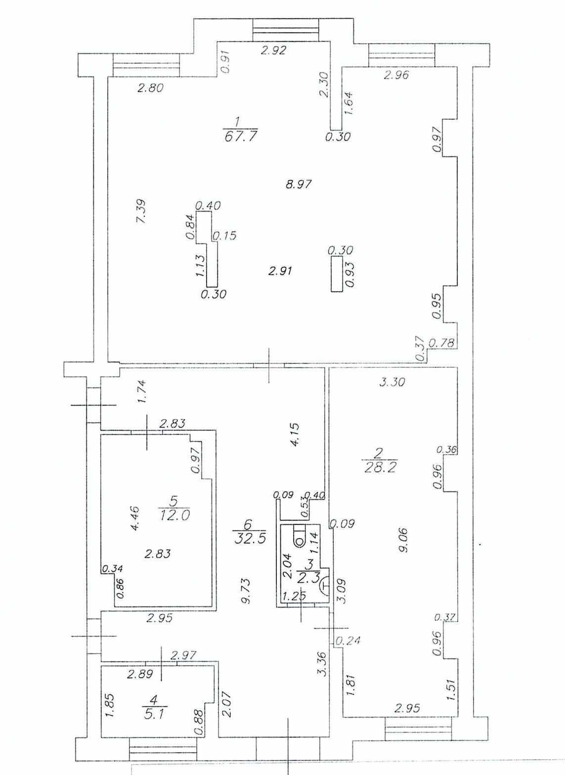
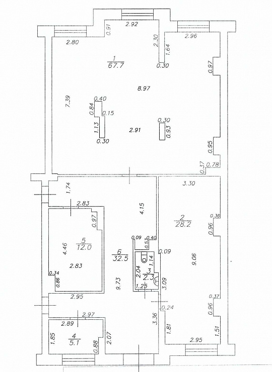
Площадь: 300 м².
Этаж / Этажность: 1 / 19.

Описание и характеристики

Помещения свободного назначения в новом ЖК "Голливуд".
Расположение: в 5-ти минутах ходьбы от ст. метро Аметьево.
Площадь 301,1м2. Высокие потолки 4м. Перегородки гипсокартон.
Два отдельных входа 24/7, есть возможность сделать выход во двор (предлагалось застройщиком). А так же использовать как два отдельных помещения по 150м2
Варианты использования:  медицинский центр, стоматология, детский центр, офис, развлечения, фитнес-центр, доставка и др.

Характеристики:
- 1 линия
- Два отдельных входа, доступ 24/7
- Общая парковка
- Сан. узлы, мокрые точки
- Центральное отопление
- Чистовой ремонт
- Кабинетная планировка (перегородки гипсокартон)
- Жилой дом
- Видеонаблюдение
- С окнами

Расположение: в 5-ти минутах ходьбы от ст. метро Аметьево.
Площадь 301,1м2. Высокие потолки 4м. Перегородки гипсокартон.
Два отдельных входа 24/7, есть возможность сделать выход во двор (предлагалось застройщиком). А так же использовать как два отдельных помещения по 150м2
Варианты использования:  медицинский центр, стоматология, детский центр, офис, развлечения, фитнес-центр, доставка и др.

Рядом: Магнит, пекарня, кофейня, барбер, Willdberries и тд
АРР0

По всем вопросам можете обращаться к представителю собственника: Геннадий (217)

Перейти в карточку объекта в CRM: 123730.

Миляуша

+7 927 044-09-47

или оставьте ваш номер, и я перезвоню в течение 30 минут

Отправляя заявку вы соглашаетесь на обработку персональных данных

390 000 руб.

?

$ 4 986

€ 4 235

1 300 руб./м²


300 м²

1/19 этажей

Код объекта

123730

Предложение доступно для субагентов, авторизуйтесь

Миляуша

+7 927 044-09-47

или оставьте ваш номер, и я перезвоню в течение 30 минут

Отправляя заявку вы соглашаетесь на обработку персональных данных

Похожие объявления

Посмотреть все похожие объявления
1/15
Код объекта: 342273.
Тип объекта: Помещение свободного назначения.
Площадь: 262 м².
Этаж / Этажность: 1 / 1.
1/23
Код объекта: 253400.
Тип объекта: Помещение свободного назначения.
Площадь: 572.4 м².
Этаж / Этажность: 1 / 3.
1/16
Код объекта: 335634.
Тип объекта: Помещение свободного назначения.
Площадь: 600 м².
Этаж / Этажность: 1 / 2.
1/24
Код объекта: 287461.
Тип объекта: Помещение свободного назначения.
Площадь: 776 м².
Этаж / Этажность: 5 / 8.
1/27
Код объекта: 308418.
Тип объекта: Помещение свободного назначения.
Площадь: 350 м².
Этаж / Этажность: 1 / 8.
1/15
Код объекта: 342273.
Тип объекта: Помещение свободного назначения.
Площадь: 262 м².
Этаж / Этажность: 1 / 1.
1/6
Код объекта: 371278.
Тип объекта: Помещение свободного назначения.
Площадь: 373 м².
Этаж / Этажность: 1 / 16.
1/17
Код объекта: 307124.
Тип объекта: Помещение свободного назначения.
Площадь: 242 м².
Этаж / Этажность: 1 / 14.
1/11
Код объекта: 242856.
Тип объекта: Помещение свободного назначения.
Площадь: 211 м².
Этаж / Этажность: 1 / 2.
1/14
Код объекта: 222666.
Тип объекта: Помещение свободного назначения.
Площадь: 330 м².
Этаж / Этажность: 1 / 9.
1/19
Код объекта: 253146.
Тип объекта: Складское помещение.
Площадь: 5000 м².
Этаж / Этажность: 1 / 1.
1/5
Код объекта: 313323.
Тип объекта: Земельный участок.
Площадь: 55000 .
1/7
Код объекта: 240471.
Тип объекта: Земельный участок.
Площадь: 71400 .
1/20
Код объекта: 216229.
Тип объекта: Торговое помещение.
Площадь: 820 м².
Этаж / Этажность: -1 / 2.
1/10
Код объекта: 242538.
Тип объекта: Помещение свободного назначения.
Площадь: 13.5 м².
Этаж / Этажность: 3 / 3.

Не хочу искать, перезвоните мне!

Оставьте номер телефона, наш специалист свяжется с вами и поможет с подбором недвижимости!