Продаю 1080 м² с земельным участком

Старое Кощаково ул Промпарковая, д. 16

75 000 000 руб.

?

$ 1 086

€ 979

69 444 руб./м²


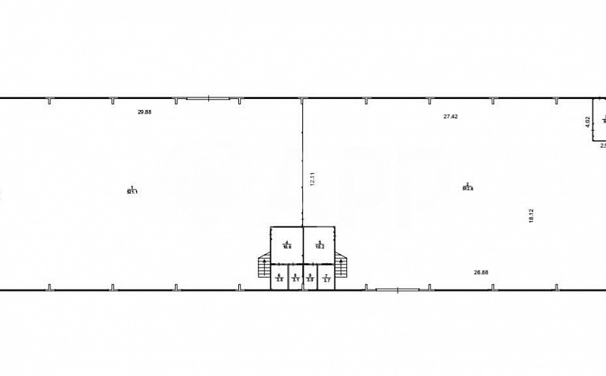
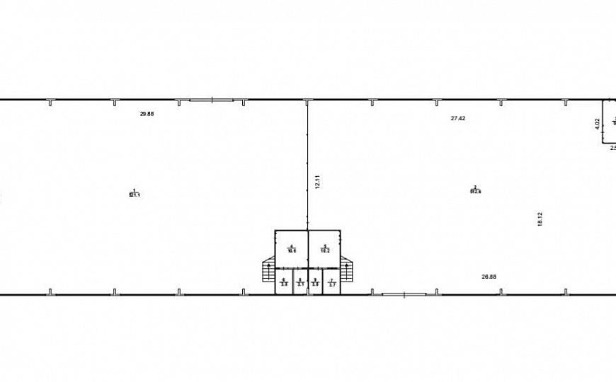
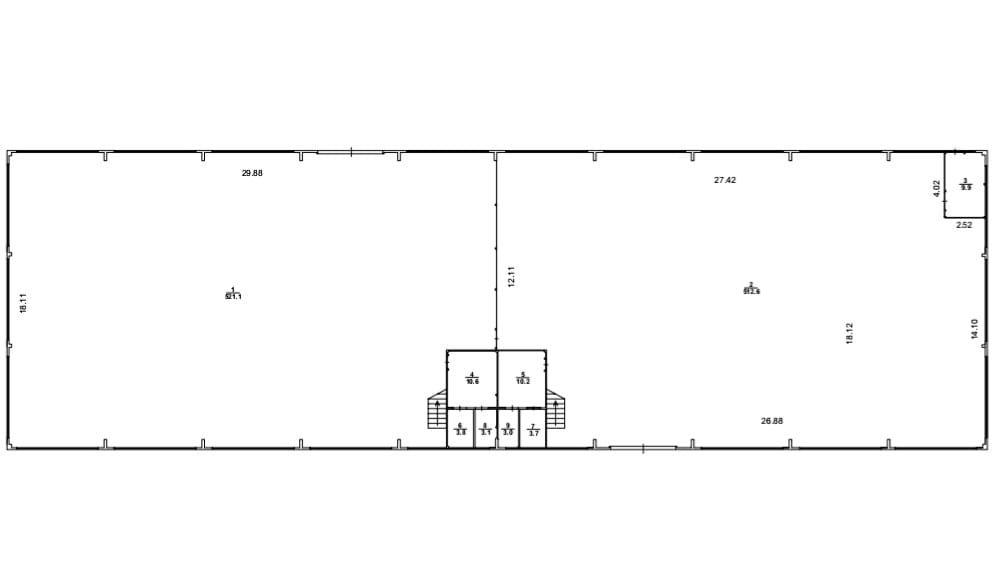
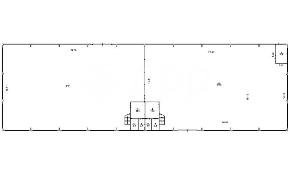
1080 м²

1/1 этажей

Код объекта

120899

Предложение доступно для субагентов, авторизуйтесь

Продаю 1080 м² с земельным участком

Код объекта: 120899.
Тип объекта: Готовый арендный бизнес.
Площадь: 1080 м².
Этаж / Этажность: 1 / 1.
Месячный арендный поток (МАП): 642800 руб.
Окупаемость: 9.7 лет
Доходность: 10.3 %
Назначения: Производство, Склад.

Описание и характеристики

Стоимость объекта: 75 000 000 руб.
Месячный арендный поток (МАП): 642 800 руб.
Окупаемость: 9.7 лет
Доходность: 10.3 %
Производственно-складское помещение с тремя арендаторами. Помещение 1080 м2 с земельным участком 19 соток. Удобные подъездные пути. Непосредственная близость Казани и федеральной трассы М7.
Выгодное вложение финансов. Звоните, покажем!

Характеристики:
- Теплый склад
- Доступ 24/7
- Свой санузел
- Индивидуальное отопление
- Напольное покрытие - Антипыль
- Подъездные пути под грузовой транспорт, легковой транспорт
- Дополнительные преимущества: Площадка рядом с помещением, Место для маневра транспорта
АРР0

По всем вопросам можете обращаться к представителю собственника: Давид (743), Ильнур (745)

Перейти в карточку объекта в CRM: 120899.

Миляуша

+7 927 044-09-47

или оставьте ваш номер, и я перезвоню в течение 30 минут

Отправляя заявку вы соглашаетесь на обработку персональных данных

75 000 000 руб.

?

$ 892 876

€ 770 902

69 444 руб./м²


1080 м²

1/1 этажей

Код объекта

120899

Предложение доступно для субагентов, авторизуйтесь

Миляуша

+7 927 044-09-47

или оставьте ваш номер, и я перезвоню в течение 30 минут

Отправляя заявку вы соглашаетесь на обработку персональных данных

Похожие объявления

Посмотреть все похожие объявления
1/7
Код объекта: 400745.
Тип объекта: Готовый арендный бизнес.
Площадь: 728.6 м².
Этаж / Этажность: 1 / 2.
1/30
Код объекта: 394658.
Тип объекта: Готовый арендный бизнес.
Площадь: 300 м².
Этаж / Этажность: 1 / 9.
1/12
Код объекта: 238742.
Тип объекта: Готовый арендный бизнес.
Площадь: 1680 м².
Этаж / Этажность: -1 / 24.
1/12
Код объекта: 406007.
Тип объекта: Готовый арендный бизнес.
Площадь: 289 м².
Этаж / Этажность: 1 / 20.
1/11
Код объекта: 257371.
Тип объекта: Готовый арендный бизнес.
Площадь: 440.9 м².
Этаж / Этажность: -1 / 3.
1/10
Код объекта: 410280.
Тип объекта: Готовый арендный бизнес.
Площадь: 1244 м².
Этаж / Этажность: 1 / 2.
1/13
Код объекта: 281817.
Тип объекта: Готовый арендный бизнес.
Площадь: 1003 м².
Этаж / Этажность: 1 / 3.
1/16
Код объекта: 370194.
Тип объекта: Готовый арендный бизнес.
Площадь: 1170 м².
Этаж / Этажность: 1 / 1.
1/13
Код объекта: 413942.
Тип объекта: Готовый арендный бизнес.
Площадь: 900 м².
Этаж / Этажность: 1 / 2.
1/23
Код объекта: 242860.
Тип объекта: Готовый арендный бизнес.
Площадь: 1342.21 м².
Этаж / Этажность: 1 / 4.
1/19
Код объекта: 253146.
Тип объекта: Складское помещение.
Площадь: 5000 м².
Этаж / Этажность: 1 / 1.
1/7
Код объекта: 240471.
Тип объекта: Земельный участок.
Площадь: 71400 .
1/10
Код объекта: 242538.
Тип объекта: Помещение свободного назначения.
Площадь: 13.5 м².
Этаж / Этажность: 3 / 3.
1/3
Код объекта: 304850.
Тип объекта: Земельный участок.
Площадь: 10000 м².
1/103
Код объекта: 335368.
Тип объекта: Гостиница.
Площадь: 700 м².
Этаж / Этажность: 1 / 2.

Не хочу искать, перезвоните мне!

Оставьте номер телефона, наш специалист свяжется с вами и поможет с подбором недвижимости!