Коммерция от 64 м2 или 140 м2 в центре | 2 входа | Можно разделить

ул Хади Такташа, д. 41

210 000 руб.

?

$ 1 086

€ 979

1 500 руб./м²


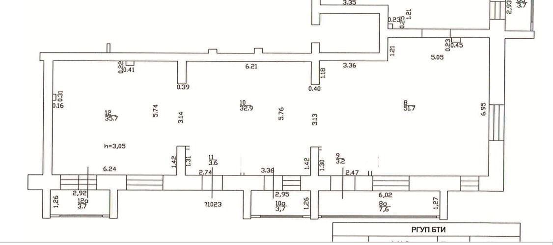
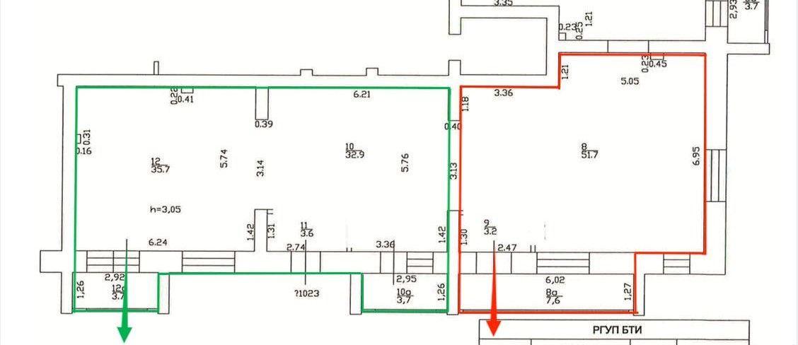
140 м²

1/10 этажей

Код объекта

128666

Предложение доступно для субагентов, авторизуйтесь

Коммерция от 64 м2 или 140 м2 в центре | 2 входа | Можно разделить

Код объекта: 128666.
Тип объекта: Офисное помещение.
Площадь: 140 м².
Этаж / Этажность: 1 / 10.
Назначения: Офис.

Описание и характеристики

Центральная локация с удобной транспортной доступностью и развитой инфраструктурой.
Помещение предлагается в аренду целиком либо с делением на два автономных блока.
▪️ Общая площадь — 140 м²
▪️ Блок 64 м² — 1500 ₽/м²
▪️ Блок 76 м² — 1500 ₽/м²
▪️ Целиком 140 м² — 1300 ₽/м²

Характеристики:
- 1 линия
- Отдельная входная группа
- Общая парковка
- Доступ 24/7
- Свой санузел
- Центральное отопление
- Чистовой ремонт
- Открытая планировка
- Жилой дом
- Без лифта
- Видеонаблюдение
- Без мебели
- С окнами
- Инфраструктура: Кафе/столовые, Магазины

▪️ Планировка open space — свободное пространство, удобно адаптировать под формат арендатора
▪️ Два отдельных входа — возможность автономной аренды двух помещений
▪️ Два санузла (две мокрые точки) — при делении каждый блок со своим санузлом

Подойдёт для:

Сферы услуг, Бьюти-направлений (студии, кабинеты), Офисов компаний и представительств, Образовательных и консультационных проектов, Магазинов и шоу-румов (не продуктовых), Студий и сервисных пространств

По всем вопросам можете обращаться к представителю собственника: Игнатьева Т.(715)

Перейти в карточку объекта в CRM: 128666.

Миляуша

+7 927 044-09-47

или оставьте ваш номер, и я перезвоню в течение 30 минут

Отправляя заявку вы соглашаетесь на обработку персональных данных

210 000 руб.

?

$ 2 762

€ 2 365

1 500 руб./м²


140 м²

1/10 этажей

Код объекта

128666

Предложение доступно для субагентов, авторизуйтесь

Миляуша

+7 927 044-09-47

или оставьте ваш номер, и я перезвоню в течение 30 минут

Отправляя заявку вы соглашаетесь на обработку персональных данных

Похожие объявления

Посмотреть все похожие объявления
1/27
Код объекта: 294577.
Тип объекта: Офисное помещение.
Площадь: 300 м².
Этаж / Этажность: 6 / 6.
1/21
Код объекта: 338074.
Тип объекта: Офисное помещение.
Площадь: 196 м².
Этаж / Этажность: 1 / 9.
1/20
Код объекта: 336990.
Тип объекта: Офисное помещение.
Площадь: 180 м².
Этаж / Этажность: 1 / 6.
1/36
Код объекта: 335006.
Тип объекта: Офисное помещение.
Площадь: 150 м².
Этаж / Этажность: 3 / 3.
1/26
Код объекта: 288673.
Тип объекта: Офисное помещение.
Площадь: 150 м².
Этаж / Этажность: 1 / 12.
1/20
Код объекта: 336990.
Тип объекта: Офисное помещение.
Площадь: 180 м².
Этаж / Этажность: 1 / 6.
1/36
Код объекта: 335006.
Тип объекта: Офисное помещение.
Площадь: 150 м².
Этаж / Этажность: 3 / 3.
1/12
Код объекта: 335884.
Тип объекта: Офисное помещение.
Площадь: 173.3 м².
Этаж / Этажность: 1 / 5.
1/26
Код объекта: 288673.
Тип объекта: Офисное помещение.
Площадь: 150 м².
Этаж / Этажность: 1 / 12.
1/14
Код объекта: 382289.
Тип объекта: Офисное помещение.
Площадь: 134 м².
Этаж / Этажность: 1 / 9.
1/19
Код объекта: 253146.
Тип объекта: Складское помещение.
Площадь: 5000 м².
Этаж / Этажность: 1 / 1.
1/7
Код объекта: 240471.
Тип объекта: Земельный участок.
Площадь: 71400 .
1/20
Код объекта: 216229.
Тип объекта: Торговое помещение.
Площадь: 820 м².
Этаж / Этажность: -1 / 2.
1/10
Код объекта: 242538.
Тип объекта: Помещение свободного назначения.
Площадь: 13.5 м².
Этаж / Этажность: 3 / 3.
1/3
Код объекта: 304850.
Тип объекта: Земельный участок.
Площадь: 10000 м².

Не хочу искать, перезвоните мне!

Оставьте номер телефона, наш специалист свяжется с вами и поможет с подбором недвижимости!