Помещение готовый хостел у метро

ул Октябрьская, д. 38

90 000 руб.

?

$ 1 086

€ 979

874 руб./м²


103 м²

-1/5 этажей

Код объекта

132055

Предложение доступно для субагентов, авторизуйтесь

Помещение готовый хостел у метро

Код объекта: 132055.
Тип объекта: Гостиница.
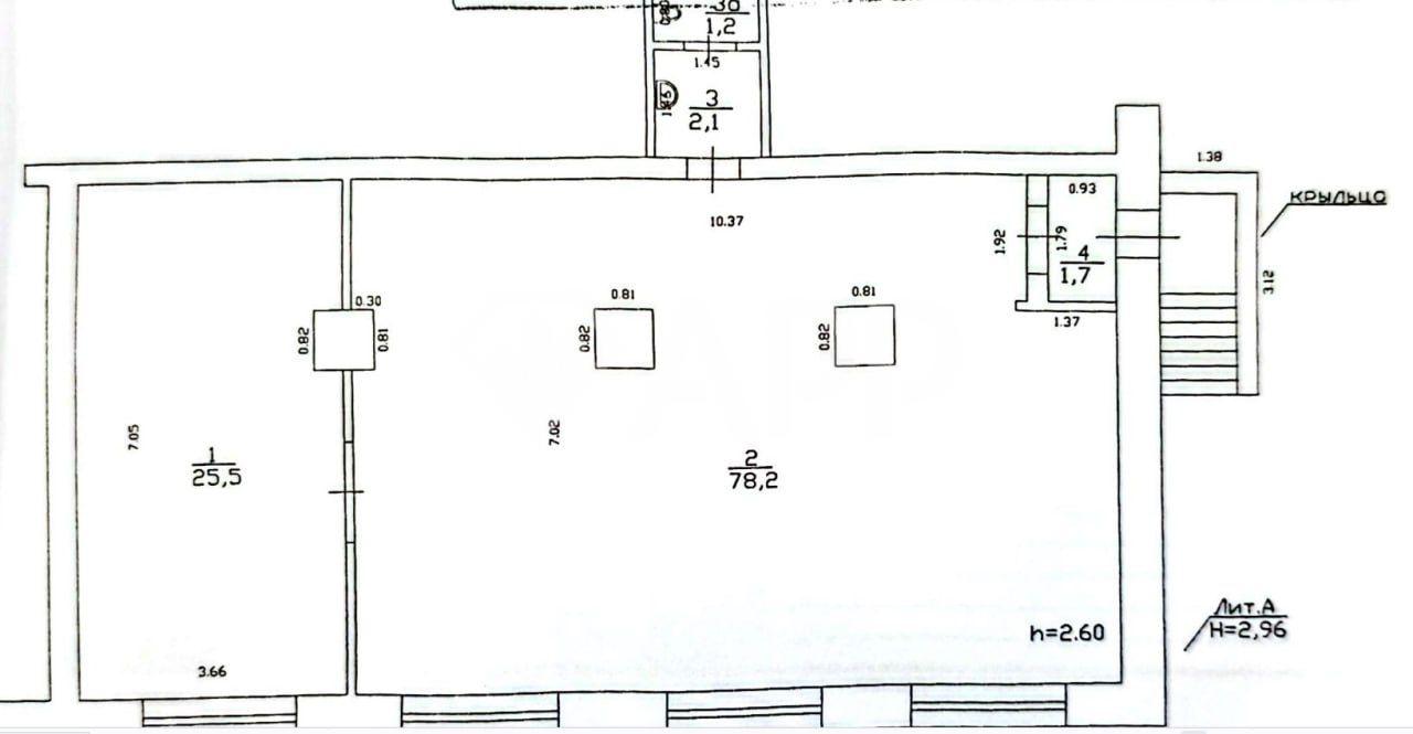
Площадь: 103 м².
Этаж / Этажность: -1 / 5.

Описание и характеристики

Характеристики:
- 2 линия
- Отдельная входная группа
- Общая парковка
- Есть возможность разместить вывеску
- Погрузка/разгрузка: Главный вход
- Доступ 24/7
- ХВС/ГВС
- Свой санузел
- Центральное отопление
- Естественная вентиляция
- Есть кондиционер
- Максимальная мощность 15 кВт
- Хороший ремонт
- Торговый/офисный центр
- Без лифта
- С окнами
- Возможность перепланировки
- Коммунальные услуги оплачиваются отдельно

Дополнительная информация:
Готовый хостел (мини гостиница) в Ново-Савиновском районе.

Два раздельных блока для мужчин (16 мест) и женщин (8 мест). Один двухместный номер. Кухонная зона. Раздельные душевые и уборные. Полностью готовое помещение для бизнеса в сфере гостеприимства.  

10 минут пешком до станции метро, 7 минут до остановки общественного транспорта. Железнодорожный вокзал - 12 минут пешком. Поблизости много промышленных предприятий и строительных объектов.
АРР0

По всем вопросам можете обращаться к представителю собственника: Илья (726)

Перейти в карточку объекта в CRM: 132055.

Миляуша

+7 927 044-09-47

или оставьте ваш номер, и я перезвоню в течение 30 минут

Отправляя заявку вы соглашаетесь на обработку персональных данных

90 000 руб.

?

$ 1 188

€ 995

874 руб./м²


103 м²

-1/5 этажей

Код объекта

132055

Предложение доступно для субагентов, авторизуйтесь

Миляуша

+7 927 044-09-47

или оставьте ваш номер, и я перезвоню в течение 30 минут

Отправляя заявку вы соглашаетесь на обработку персональных данных

Похожие объявления

Посмотреть все похожие объявления
1/19
Код объекта: 253146.
Тип объекта: Складское помещение.
Площадь: 5000 м².
Этаж / Этажность: 1 / 1.
1/7
Код объекта: 240471.
Тип объекта: Земельный участок.
Площадь: 71400 .
1/10
Код объекта: 242538.
Тип объекта: Помещение свободного назначения.
Площадь: 13.5 м².
Этаж / Этажность: 3 / 3.
1/3
Код объекта: 304850.
Тип объекта: Земельный участок.
Площадь: 10000 м².
1/103
Код объекта: 335368.
Тип объекта: Гостиница.
Площадь: 700 м².
Этаж / Этажность: 1 / 2.

Не хочу искать, перезвоните мне!

Оставьте номер телефона, наш специалист свяжется с вами и поможет с подбором недвижимости!