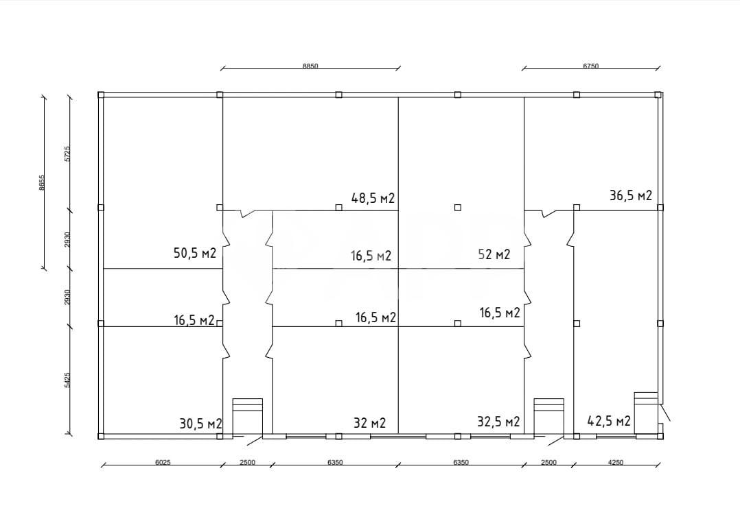
Сдам помещение свободного назначения, 350 м²

Габишево Молодежный пр-кт, д. 54

525 000 руб.

?

$ 1 086

€ 979

1 500 руб./м²


350 м²

1/2 этажей

Код объекта

105961

Предложение доступно для субагентов, авторизуйтесь

Сдам Помещение свободного назначения, 350 м²

Код объекта: 105961.
Тип объекта: Помещение свободного назначения.
Площадь: 350 м².
Этаж / Этажность: 1 / 2.

Описание и характеристики

От собственника! Без комиссии!


Сдам помещение на трафике 350 м²

Характеристики:
- 1 линия
- 1 этаж
- Отдельная входная группа
- Общая парковка
- Есть возможность разместить вывеску
- Погрузка, используя Запасной вход
- Доступ 24/7
- ХВС водоснабжение
- Санузел - Свой
- Автономное отопление
- Естественная вентиляция
- Максимальная мощность 30кВт
- Черновой ремонт
- Свободная планировка
- Есть возможность перепланировки
- Высота потолков 2,8м
- Коммунальные услуги Оплачиваются отдельно

Подходит под торговлю, общественное питание, услуги.
В здании находится магазин "Пятерочка", Порт

По всем вопросам можете обращаться к представителю собственника: Игнатьева Т. (715), Дима Ц (236)

Перейти в карточку объекта в CRM: 105961.

Миляуша

+7 927 044-09-47

или оставьте ваш номер, и я перезвоню в течение 30 минут

Отправляя заявку вы соглашаетесь на обработку персональных данных

525 000 руб.

?

$ 6 463

€ 5 595

1 500 руб./м²


350 м²

1/2 этажей

Код объекта

105961

Предложение доступно для субагентов, авторизуйтесь

Миляуша

+7 927 044-09-47

или оставьте ваш номер, и я перезвоню в течение 30 минут

Отправляя заявку вы соглашаетесь на обработку персональных данных

Похожие объявления

Посмотреть все похожие объявления
1/10
Код объекта: 350518.
Тип объекта: Помещение свободного назначения.
Площадь: 480 м².
Этаж / Этажность: 4 / 7.
1/6
Код объекта: 371278.
Тип объекта: Помещение свободного назначения.
Площадь: 373 м².
Этаж / Этажность: 1 / 16.
1/14
Код объекта: 222666.
Тип объекта: Помещение свободного назначения.
Площадь: 330 м².
Этаж / Этажность: 1 / 9.
1/19
Код объекта: 337763.
Тип объекта: Помещение свободного назначения.
Площадь: 595 м².
Этаж / Этажность: -1 / 2.
1/24
Код объекта: 287461.
Тип объекта: Помещение свободного назначения.
Площадь: 776 м².
Этаж / Этажность: 5 / 8.
1/30
Код объекта: 236598.
Тип объекта: Помещение свободного назначения.
Площадь: 280 м².
Этаж / Этажность: 2 / 3.
1/9
Код объекта: 236697.
Тип объекта: Помещение свободного назначения.
Площадь: 250 м².
Этаж / Этажность: 1 / 2.
1/26
Код объекта: 335155.
Тип объекта: Помещение свободного назначения.
Площадь: 400 м².
Этаж / Этажность: 1 / 2.
1/17
Код объекта: 355798.
Тип объекта: Помещение свободного назначения.
Площадь: 300 м².
Этаж / Этажность: -1 / 3.
1/18
Код объекта: 306919.
Тип объекта: Помещение свободного назначения.
Площадь: 350 м².
Этаж / Этажность: 1 / 2.
1/21
Код объекта: 257964.
Тип объекта: Помещение свободного назначения.
Площадь: 340 м².
Этаж / Этажность: -1 / 3.
1/19
Код объекта: 253146.
Тип объекта: Складское помещение.
Площадь: 5000 м².
Этаж / Этажность: 1 / 1.
1/7
Код объекта: 236690.
Тип объекта: Помещение свободного назначения.
Площадь: 512 м².
Этаж / Этажность: 1 / 14.
1/14
Код объекта: 237036.
Тип объекта: Земельный участок.
Площадь: 69000 м².
1/6
Код объекта: 236701.
Тип объекта: Продажа бизнеса.
Площадь: 530.9 м².
Этаж / Этажность: -1 / 5.

Не хочу искать, перезвоните мне!

Оставьте номер телефона, наш специалист свяжется с вами и поможет с подбором недвижимости!